
Een historische parel schittert op het Kasterense landschap: een monumentale woonboerderij, verborgen op een uitgestrekt perceel van niet minder dan 4,3 hectare. Is dit het canvas waarop je jouw woonmeesterwerk gaat creëren? Gelegen aan de idyllische Gemondesestraat vind je geen betere locatie om je woondromen vorm te geven. Het landschap is bezaaid met historische boerderijen, maar deze uitzonderlijke langgevelboerderij is iets speciaals in de dop. De boerderij bestaat uit een voorhuis (waar vroeger gewoond werd) en een achterhuis (waar geboerd werd), beide nog altijd doordrenkt van historie. Met een woonoppervlakte van ca. 176 m² en een inhoud van maar liefst ca. 1.917 m³ biedt de boerderij volop potentie voor uitbreiding of creatieve projecten. Verder is er nog een authentieke veldschuur aanwezig op het perceel; ook ideaal als schuilgelegenheid voor paarden.
Feitelijk bestaat het landgoed vooraleerst uit circa 6.500 m² ondergrond, tuin en erf bij de monumentale woonboerderij. Daarachter ligt vervolgens, verdeeld over allerlei kleinere kavels, circa 25.000 m² (oftewel circa 2,5 hectare) aan landbouwgronden, in gebruik als extensieve weidegrond en akkerland. Tot slot is dit alles omgeven door nog eens 11.800 m² (circa 1,18 hectare) aan natuur: bossages, houtsingels en dergelijke. Dit alles maakt tezamen een prachtig gevarieerd landgoed dat niet alleen geschikt is om te bewonen, maar ook om daarbij nog eens (hobbymatig) paarden en ander kleinvee te houden of een prachtig particulier parklandschap te creëren. Hier ziet u reeën, hazen en talloze wilde vogels. Een ideale plek om een voedselbos of stilteplek te realiseren. Zoekt u een plek om duurzaam te leven, uw eigen groenten te verbouwen of paarden aan huis te houden? Dit landgoed biedt het allemaal.
Let wel: de woonboerderij ademt sfeer en historie, maar verkeert nog in originele staat en dient volledig gerenoveerd te worden. Voor de liefhebber van authentieke panden met een verhaal is dit juist dé kans om de boerderij geheel naar eigen smaak te herstellen en tegelijkertijd bij te dragen aan het behoud van dit bijzondere Brabants cultureel erfgoed.
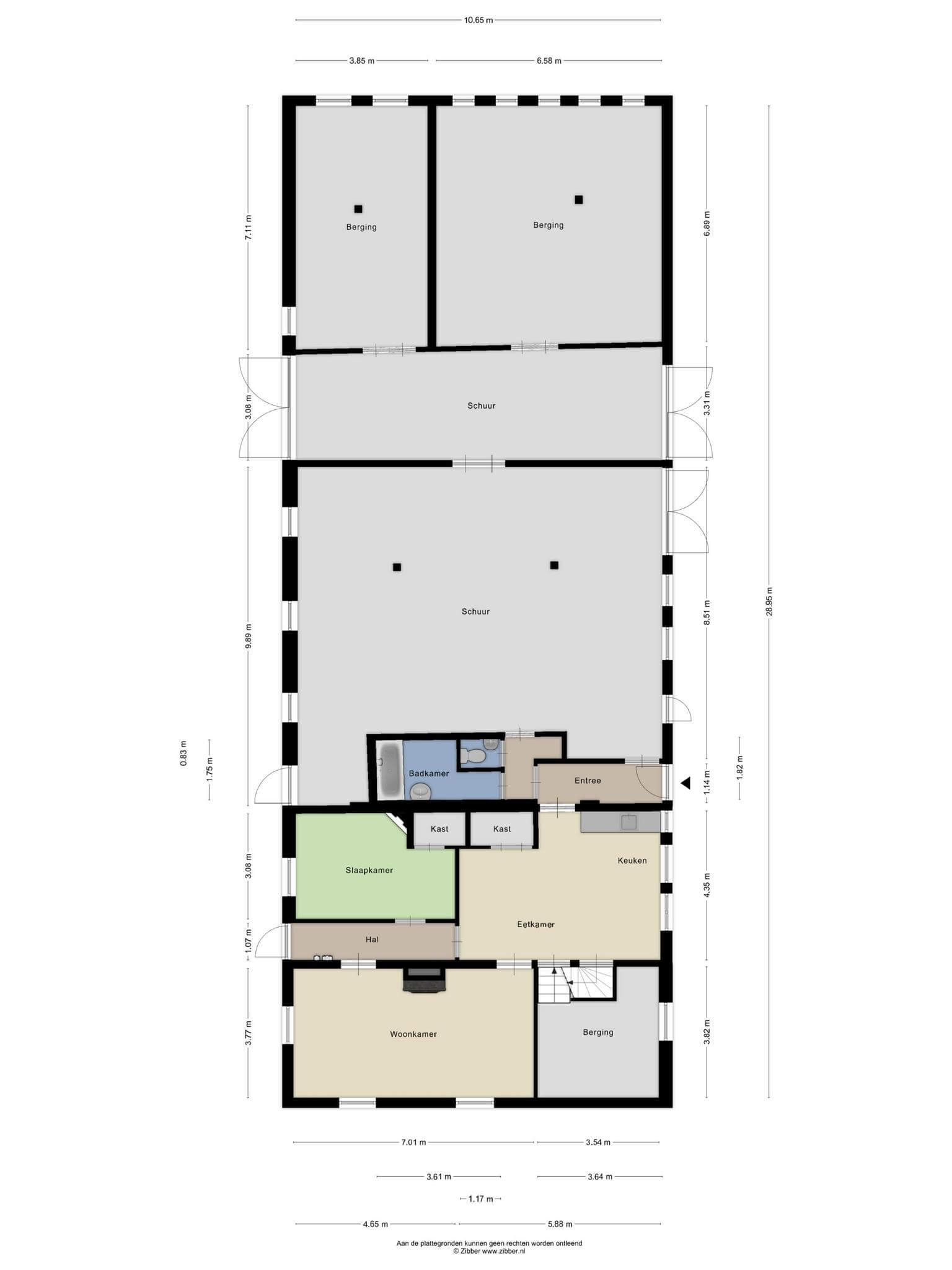
De woning is in de huidige toestand helaas redelijkerwijs niet (meer) bewoonbaar. De woning voldoet onder geen beding meer aan de huidige moderne eisen voor duurzaamheid en mate van luxe. Een grootschalige, allesomvattende renovatie ligt voor de hand. Hierna omschrijven we de huidige indeling, maar u kunt bij een renovatie de volledige boerderij (dus ook alle voormalige stalgedeeltes) voor bewoning gaan gebruiken. Het is dus niet zo dat alleen het huidige woongedeelte bewoond mag blijven.
Het voorhuis is functioneel ingericht met nog veel originele elementen. De begane grond bestaat uit de entree/hal met de meters van gas, water en elektra, de woonkamer met gaskachel en woonkeuken met vaste kast, toegang tot de kelder en vaste trap naar de opkamer en eerste verdieping. Verder treft u in de hal de toegang tot de slaapkamer met vaste kast en de mogelijkheid tot het plaatsen van een (hout)kachel.
De ruime kelder biedt volop mogelijkheid tot het bergen en koel houden van uw proviand. Boven de kelder is de opkamer gelegen. De opkamer is voorzien van twee vaste kasten en multifunctioneel te gebruiken, denk aan een slaapkamer, kantoor, speelkamer of hobbykamer.
Via de keuken bereikt u, middels de hal aan de achterzijde van de boerderij, de badkamer met wastafel en ligbad en het separate toilet. Tevens is het achterhuis via de hal bereikbaar.
Het achterhuis, van ca. 206 m², met stal, schuur en twee bergruimtes, wacht op innovatieve ideeën om omgetoverd te worden tot extra leefruimte, kantoor- of hobbyruimte, of een atelier.
De eerste verdieping heeft een zeer riante overloop die toegang geeft tot drie ruime slaapkamers en de trap naar de bergzolder. De slaapkamers zijn alle voorzien van een vaste kast, ideaal voor het bergen van uw kleding.
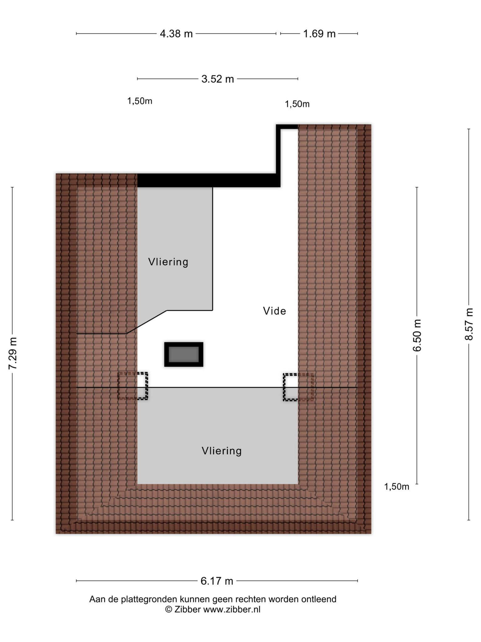
De zolderruimte (met vide) biedt mogelijkheden voor een extra slaapkamer of creatieve invullingen.
Wilt u meer informatie? Download dan de brochure. Hierin staat alles uitgebreid omschreven.








Ik zou deze makelaar aanbevelen. Super! Hele fijne communicatie en advies. Heel erg tevreden over deze makelaar. Zou het iedereen aanraden.
Alles super geregeld, goed contact, altijd bereid om mee te denken. Hebben geduld met het uitleggen omdat je niet in alle materie bekend bent. Kennen de markt goed en met veel expertise binnen het bed
Goede ervaringen met Bernheze Makelaars, veel kennis in huis, eens onze woonboerderij verkocht via hen en later een goede aankoop gedaan met ze na goed advies.
Fijne makelaar. Inmiddels al mijn 2e woning door hen laten verkopen en ook een woning laten aankopen. Laagdrempelig en professioneel, ik beveel ze graag aan.