
Object
Op bedrijventerrein Beekerheide aan de Beekerheide 10 in Beek en Donk bevindt zich dit royale en functionele bedrijfsobject met een totaal vloeroppervlak van circa 4.880 m², verdeeld over 2.541 m² op de begane grond en 2.339 m² op de verdieping met een ruim buitenterrein. Aan de voorzijde zijn de bedrijfshallen voorzien van een laad-/loskuilen met in totaal 2 docks en 1 grote overheaddeuren op maaiveld.
Aan de achterzijde zijn de bedrijfshallen over de gehele breedte van een overkapping van ca. 6 m¹ en diverse toegangsdeuren voorzien. De overkapping beschikt over een totale oppervlakte van ca. 300 m² (welke oppervlakte niet in de totale oppervlakte is meegenomen). Het representatieve bedrijfsobject is, mede dankzij de combinatie van ruime magazijnfaciliteiten en bijbehorende kantoorvoorzieningen, geschikt voor uiteenlopende bedrijfsactiviteiten zoals productie, opslag en/of groothandel. Zelfs perifere detailhandel is onder voorwaarden toegestaan.
De begane grond bestaat grotendeels uit ruime bedrijfshallen. Daarnaast zijn er kantoren, sanitaire voorzieningen, een pantry en een representatieve entree aanwezig.
De verdieping is voor een groot deel eveneens ingericht als magazijnruimte, met voldoende draagkracht en toegangsmogelijkheden voor goederen. Een kleiner deel van de verdieping is in gebruik als kantoorruimte. Dankzij de functionele indeling kan de ruimte eenvoudig worden aangepast aan de wensen van de gebruiker.
Omgeving
Bedrijventerrein Beekerheide is gelegen ten zuidoosten van de dorpskern van Beek en Donk en kan worden omschreven als een gemengd bedrijventerrein, waar voornamelijk groothandels-, ambachts- en industriële bedrijven in de MKB zijn gevestigd. Op dit bedrijventerrein bevinden zich ook bedrijfswoningen wat ook in het weekend en ’s avonds zorgt voor een goede sociale controle.
Bereikbaarheid
Bedrijventerrein Beekerheide wordt ontsloten door de Oranjelaan, dat vervolgens aansluiting geeft op de provinciale wegen N615 (Eindhoven-Gemert) en de N279 (’s-Hertogenbosch en Helmond) met een aansluiting op de A50 en A67.
Plaatselijk bekend
Beekerheide 10
5741 HC Beek en Donk
Kadastraal bekend
gemeente: Beek en Donk
sectie: K
nummer: 891 gedeeltelijk en 1370 gedeeltelijk
bron: Kadaster Eindhoven
Totale perceelsgrootte: ca. 4.250 m² (globaal bepaald, nog nader door kadaster in te meten)
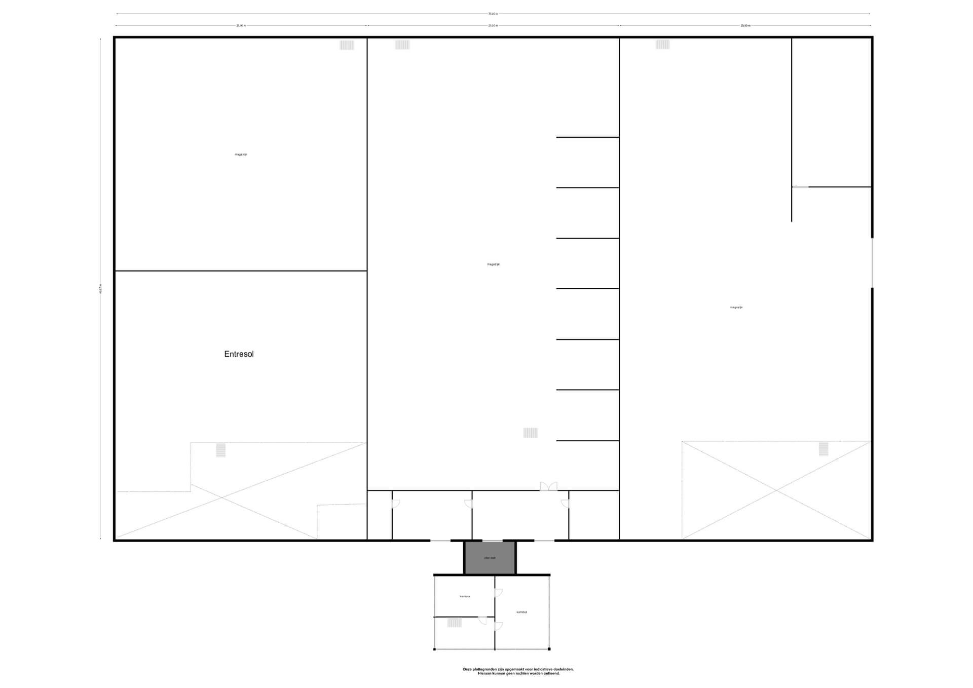
Oppervlakteverdeling van begane grond en verdieping:
Het betreft 1 object waarvan de ruimten aan elkaar zijn verbonden, echter is het object in basis opgedeeld in een linkerdeel, middendeel met aan de voorzijde de kantoren en rechterdeel.
De magazijnruimten zijn grotendeels voorzien verdiepingsvloeren.
Linkerdeel:
begane grond: magazijn/productieruimte met inpandig showroom en kantine: ca. 1.248 m²;
verdieping: magazijn met inpandig kantoor: ca. 1.088 m².
Middendeel:
begane grond: magazijn/productieruimte: 1.125 m²
verdieping: magazijn ca. 1.175 m²
Kantoorruimte aanpandig (verdeeld over 2 bouwlagen): ca. 244 m²
Totaal: ca. 4.880 m²
Duurzaamheid
Het object beschikt t.b.v. de kantoren over een energielabel C (afgegeven op 23-10-2023).
Het object is voorzien van de volgende duurzame voorzieningen:
Opleveringsniveau
Entree:
Bedrijfsruimte:
Kantine:
Kantoren:
Terrein:
Parkeren
Het object is voorzien van voldoende parkeerplaatsen.
Vraagprijs
€ 1.950.000,- kosten koper
Aanvaarding
In overleg.

Ik zou deze makelaar aanbevelen. Super! Hele fijne communicatie en advies. Heel erg tevreden over deze makelaar. Zou het iedereen aanraden.
Alles super geregeld, goed contact, altijd bereid om mee te denken. Hebben geduld met het uitleggen omdat je niet in alle materie bekend bent. Kennen de markt goed en met veel expertise binnen het bed
Goede ervaringen met Bernheze Makelaars, veel kennis in huis, eens onze woonboerderij verkocht via hen en later een goede aankoop gedaan met ze na goed advies.
Fijne makelaar. Inmiddels al mijn 2e woning door hen laten verkopen en ook een woning laten aankopen. Laagdrempelig en professioneel, ik beveel ze graag aan.