
Royaal familiehuis nabij het centrum – vrijstaand, sfeervol & riant!
Op een uitzonderlijk ruim perceel van maar liefst 1.157 m², nabij het centrum van
Veghel, staat deze royale vrijstaande woning. Een licht en comfortabel familiehuis met vijf
kamers, twee badkamers en een zonnige tuin die uitermate riant is – rust en ruimte op een
toplocatie!
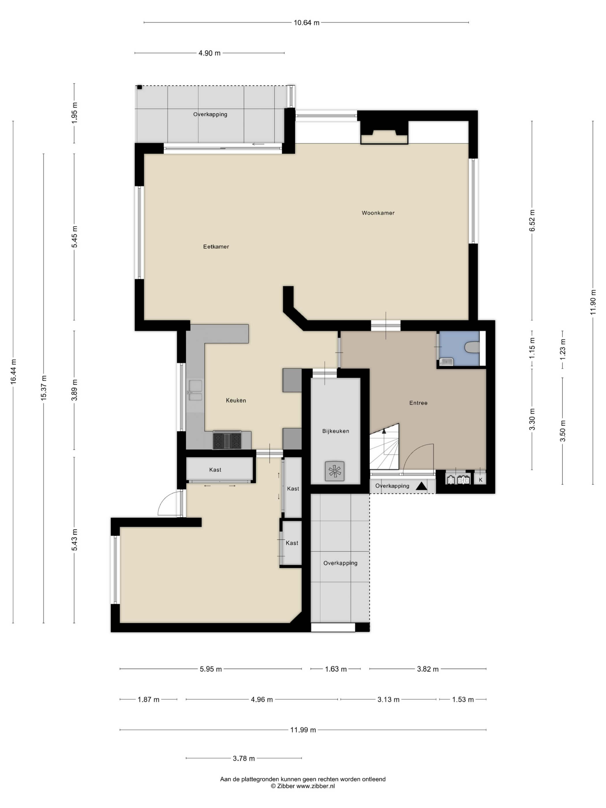
De woning is degelijk gebouwd en uitstekend onderhouden. Dankzij de grote raampartijen is
het huis heerlijk licht en voelt het ruimtelijk aan. De woonkamer met vloerverwarming en
sfeervolle open haard sluit mooi aan op de eetkamer met schuifpui naar het overdekte terras.
De open keuken in U-opstelling is voorzien van een natuurstenen werkblad en complete
inbouwapparatuur, waaronder een Boretti fornuis en Quooker. Aangrenzend vind je een
praktische provisieruimte en een royale multifunctionele kamer, ideaal als kantoor,
hobbyruimte of speelkamer.
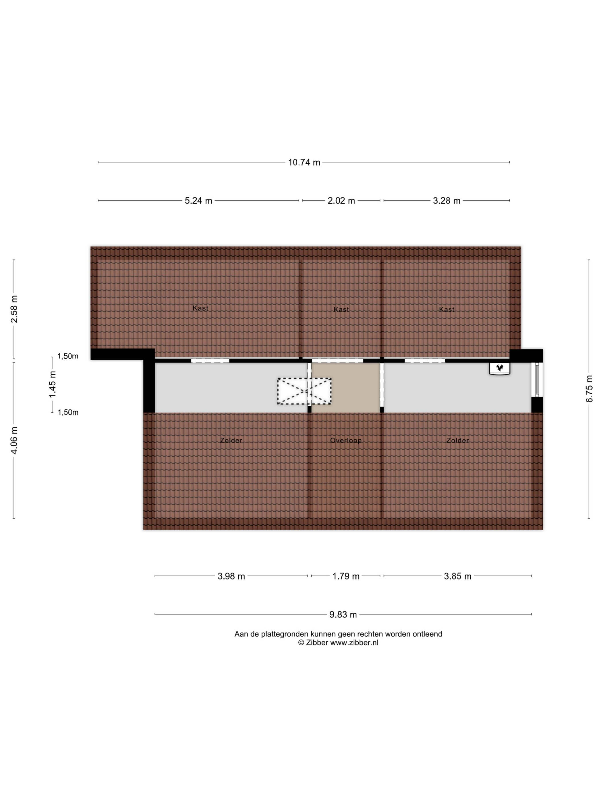
Op de eerste verdieping bevinden zich vijf ruime kamers, twee badkamers en een aparte
wasruimte. De master bedroom beschikt over een eigen badkamer met ligbad, douche en
dubbele wastafel. Eén van de kamers is uitgerust met een infrarood-wellnesscabine – een
heerlijke plek om te ontspannen.
De fraai aangelegde tuin op het zuidoosten biedt veel privacy en is voorzien van een groot
gazon, betegeld terras, prieel en houten berging. Parkeren kan eenvoudig op eigen terrein, met
ruimte voor meerdere auto’s.
Een ruime, lichte en keurig onderhouden woning met een unieke combinatie van rust en
een centrale ligging – dit is wonen op z’n best aan de Besselaar 7 in Veghel!








Ik zou deze makelaar aanbevelen. Super! Hele fijne communicatie en advies. Heel erg tevreden over deze makelaar. Zou het iedereen aanraden.
Alles super geregeld, goed contact, altijd bereid om mee te denken. Hebben geduld met het uitleggen omdat je niet in alle materie bekend bent. Kennen de markt goed en met veel expertise binnen het bed
Goede ervaringen met Bernheze Makelaars, veel kennis in huis, eens onze woonboerderij verkocht via hen en later een goede aankoop gedaan met ze na goed advies.
Fijne makelaar. Inmiddels al mijn 2e woning door hen laten verkopen en ook een woning laten aankopen. Laagdrempelig en professioneel, ik beveel ze graag aan.